Luminoso appartamento al piano alto con affaccio panoramico

1 camere

1 bagni

81 mq

1 camere da letto

1 bagni

81 mq

Appartamento

Tipo di immobile

Costruito nel 1970

Anno di costruzione

3 locali

Numero di locali

81 mq

Superficie

5

Piano

Classe energetica: E

Consumo annuale: 103.92 kWh/m²

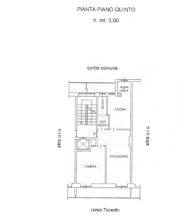
In Corso Taranto 70 proponiamo in vendita un appartamento posto al 5° piano, caratterizzato da ambienti luminosi e da affacci aperti che donano respiro e piacevolezza alla casa. L’immobile è composto da ingresso, soggiorno, camera da letto, bagno, tinello con cucinino. La distribuzione interna risulta funzionale e ben organizzata, ideale per chi è alla ricerca di una soluzione comoda da abitare, con spazi versatili e facilmente personalizzabili. Elemento di particolare pregio è l’ampio balcone panoramico, dal quale si gode di una gradevole vista aperta sulle montagne e sulla Basilica di Superga, dettaglio che valorizza ulteriormente l’abitazione e contribuisce a renderla ancora più luminosa e ariosa. L’appartamento si inserisce in un contesto comodo ai principali servizi, ai mezzi pubblici e alle attività commerciali del quartiere. Lo stabile è inoltre stato interessato da un’importante riqualificazione straordinaria delle parti comuni, comprendente interventi su copertura, facciate, balconi, impianto fotovoltaico condominiale e adeguamento antincendio, elemento che rappresenta un valore aggiunto in termini di conservazione e valorizzazione nel tempo. Una soluzione al piano alto, luminosa e ben distribuita, impreziosita da una piacevole vista aperta e inserita in uno stabile oggetto di significativo ammodernamento.

Annuncio aggiornato:30 Mar, 2026

Visualizzazioni totali:432

Luminoso appartamento al piano alto con affaccio panoramico

Ti è piaciuta la casa?

Caratteristiche

Centralizzato

Cucina aperta sul soggiorno, Cucinino

Balcone, Bagno finestrato, Doppi vetri

9 livelli/piani

Città, Colline

Planimetria

Video

For privacy reasons YouTube needs your permission to be loaded. For more details, please see our Privacy Policy.

Altri Appartamento in vendita

  • BORGO SAN PAOLO – BILOCALE COMPLETAMENTE RISTRUTTURATO

    via carrù 11

    1 camere

    ·

    1 bagni

    ·

    60 mq

    €155.000

    In Vendita

  • Luminoso quadrilocale Strada Andezeno 79, Chieri.

    Via Don Romolo Murri 3

    2 camere

    ·

    2 bagni

    ·

    104 mq

    €225.000

    In Vendita

  • Quadrilocale in Via Mazzè 32, Torino.

    via mazzè 32, Torino

    2 camere

    ·

    1 bagni

    ·

    93 mq

    €130.000

    In Vendita

  • Appartamento con terrazzo Costa Serena-Via Punta Sardegna

    Località Serena, Palau

    2 camere

    ·

    1 bagni

    ·

    79 mq

    €415.000

    In Vendita

  • Trilocale appena ristrutturato Via Barletta 99, Torino.

    Via Barletta 99, Torino

    2 camere

    ·

    1 bagni

    ·

    80 mq

    €235.000

    In Vendita

  • Ampio bilocale panoramico – Corso Eusebio Giambone 9, Torino

    Corso Eusebio Giambone 9 • Torino (TO)

    1 camere

    ·

    1 bagni

    ·

    56 mq

    €92.000

    Venduta