Casa indipendente con vista mare a Porto Rafael, Palau (Sardegna)
2 camere da letto
•
2 bagni
•
116 mq
Casa indipendente
Tipo di immobile
Costruito nel 1969
Anno di costruzione
4 locali
Numero di locali
116 mq
Superficie
Piano terra
Piano
Classe energetica: F
Consumo annuale: 197.33 kWh/m²
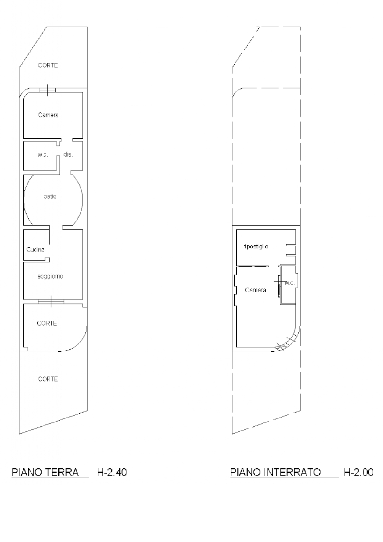
Nel prestigioso contesto residenziale di Le Maisonette, nel cuore di Porto Rafael, proponiamo in vendita una casa indipendente con splendida vista mare, inserita in un ambiente riservato e di grande fascino naturale. La proprietà, di circa 116 mq catastali, si sviluppa su due livelli. Al piano terra dispone di ingresso indipendente, soggiorno con angolo cottura, una camera da letto, un bagno e un piacevole patio interno che garantisce luminosità e continuità tra gli spazi. Il piano seminterrato ospita una zona notte con posti letto, un’area di servizio/deposito e un bagno con doccia. Completa la proprietà un posto auto di pertinenza. L’immobile gode di una posizione privilegiata, immersa nella macchia mediterranea, con percorsi pedonali che conducono al mare, al porticciolo e alla caratteristica piazzetta di Porto Rafael, facilmente raggiungibili a piedi. Inserita in un consorzio organizzato, la proprietà beneficia di servizi dedicati, tra cui vigilanza e campo da tennis. Per caratteristiche, posizione e contesto esclusivo, rappresenta una soluzione ideale sia come residenza per le vacanze sia come investimento a reddito.
Annuncio aggiornato:24 Gen, 2026
Visualizzazioni totali:347
Casa indipendente con vista mare a Porto Rafael, Palau (Sardegna)
Caratteristiche
Posto auto
Cucina aperta sul soggiorno
Terrazzo, Bagno finestrato
1 livelli/piani
Mare
Parcheggio gratuito, Accesso alla spiaggia, Casa indipendente

















