TORRAZZA PIEMONTE (TO) – CAPANNONE INDUSTRIALE DI 6.060 MQ
3+ bagni
•
6.060 mq
Capannone
Tipo di immobile
Costruito nel 1976
Anno di costruzione
6 + locali
Numero di locali
6.060 mq
Superficie
Terra
Piano
Classe energetica: E
Consumo annuale: 142.79 kWh/m²
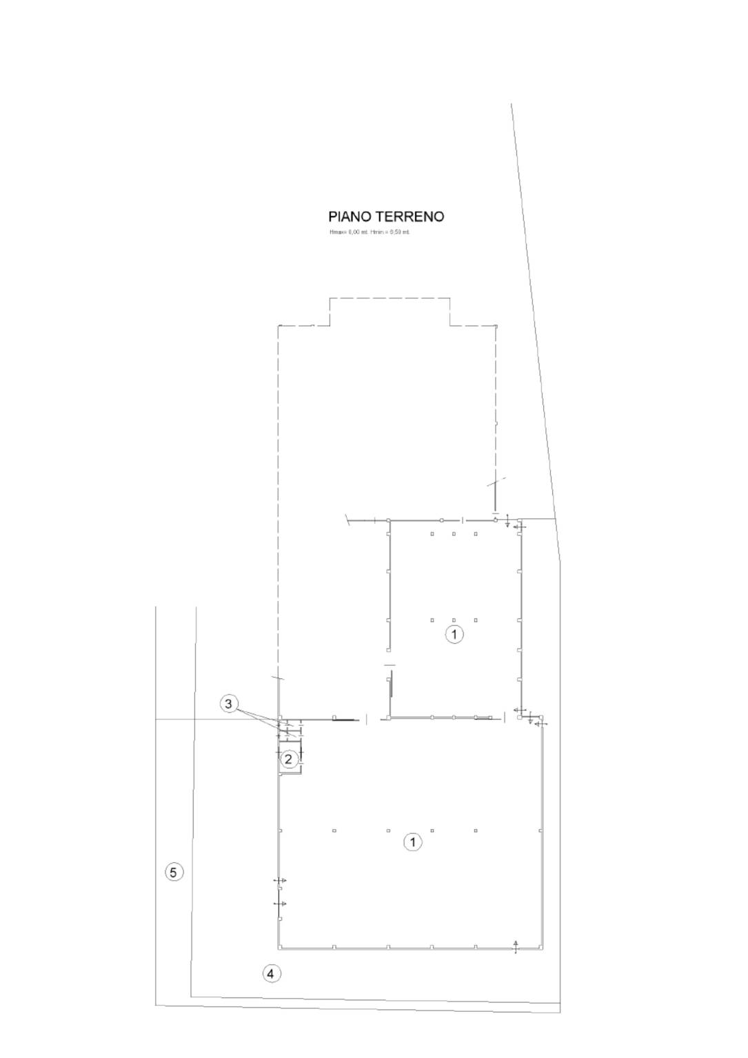
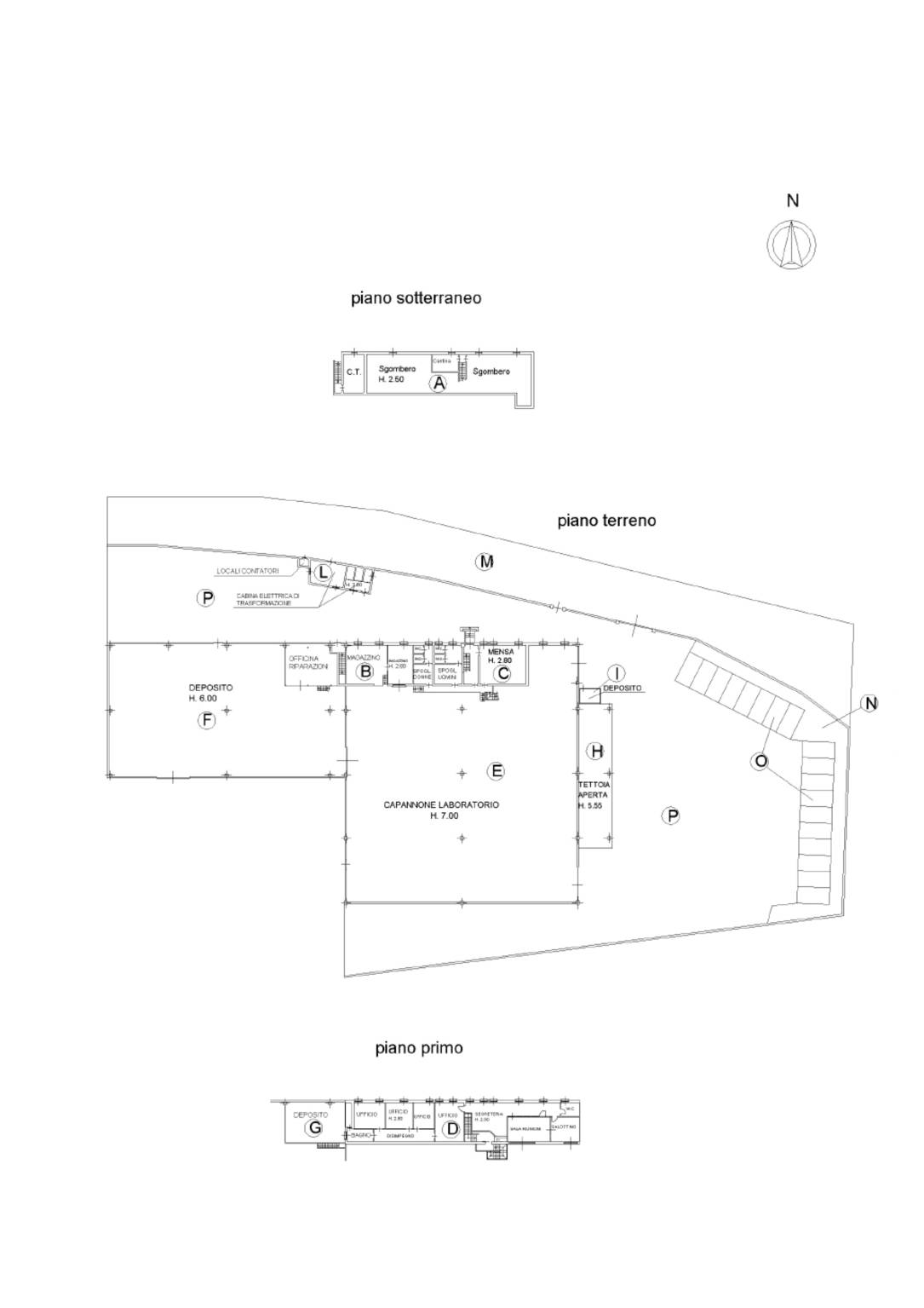
A Torrazza Piemonte, in posizione strategica e comoda ai principali collegamenti viari, proponiamo in vendita un ampio capannone industriale di complessivi 6.060 mq, con area esterna recintata di circa 3.800 mq. e circa 9.000 mq. di terreno in parte edificabile.
L’immobile si distingue per la funzionale suddivisione interna in quattro blocchi, ciascuno dotato di accesso indipendente verso l’esterno, ideale per attività produttive, logistiche o di stoccaggio.
La zona uffici, sviluppata su due livelli (piano terra e primo piano), occupa circa 280 mq ed è dotata di impianto di climatizzazione e quattro servizi igienici.
Posizione strategica:
• Centro del paese a soli 5 minuti
• Stazione ferroviaria a 1,8 km
• Polo Amazon Torrazza a 1,5 km
• Ingresso tangenziale/autostrada a 4 km
La comodità ai principali snodi viari e la prossimità alle grandi realtà logistiche rendono questo immobile una soluzione ideale per aziende che cercano spazi ampi, efficienti e facilmente accessibili nella cintura torinese.
Annuncio aggiornato:3 Dic, 2025
Visualizzazioni totali:303
TORRAZZA PIEMONTE (TO) – CAPANNONE INDUSTRIALE DI 6.060 MQ
Caratteristiche
Aria condizionata
Gas naturale, Autonomo
Posto auto
2 livelli/piani
Accessibile con sedia a rotelle
Antifurto





















































